
Projets et réalisations pour particuliers
Extension des espaces de vie en ossature bois
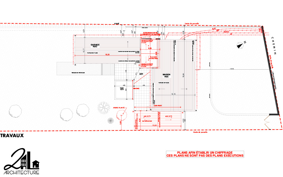
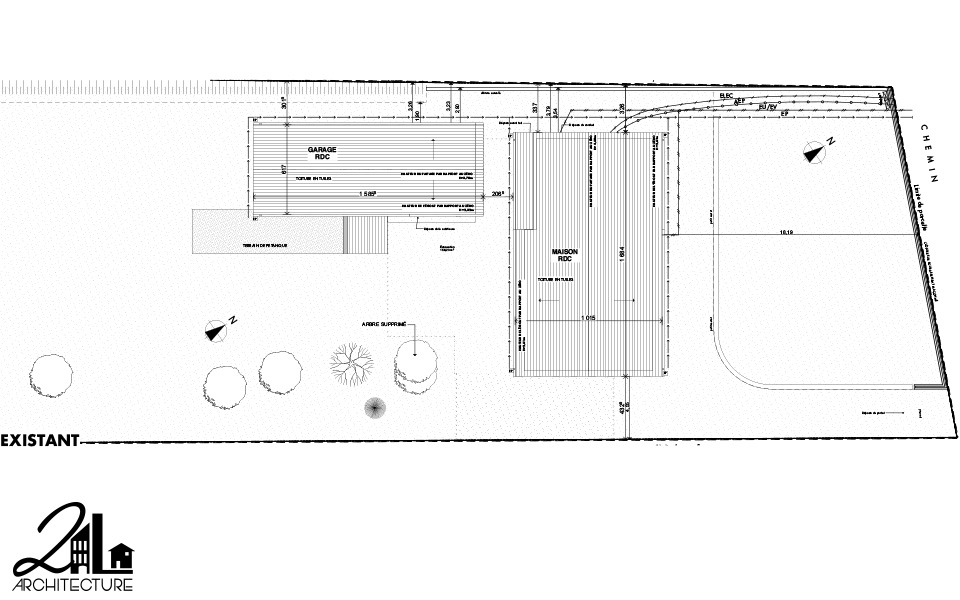
Extension des espaces de vie à Barcelonne du Gers
Construction en bois d’une liaison entre la maison et l’annexe existante qui est aménagée en pièce de vie et salle de sport. Ce bâtiment est associé à la construction d’une piscine avec une terrasse carrelée.
• Les matériaux mis en œuvre : ossature bois, étanchéité PVC, menuiserie aluminium, plafond, placo, carrelage
• Mission : permis de construire avec plans APD pour le marché de travaux avec les entreprises.
PARTICULIER – GROUPEMENT D’ENTREPRISES
Le projet en chiffres
Lieu : Barcelonne- du-Gers (32720), GERS
Montant des travaux : 86 000 €TTC
Durée : 3 mois de travaux
Nature : extension en ossature bois
Surfaces utiles : 20 m² neuf, 40 m² aménagement et 50 m² de carport
Surface du terrain : 2 300 m²
Projets et réalisations