
Projets et réalisations pour professionnels et collectivités
Agrandissement de la maison de la petite enfance
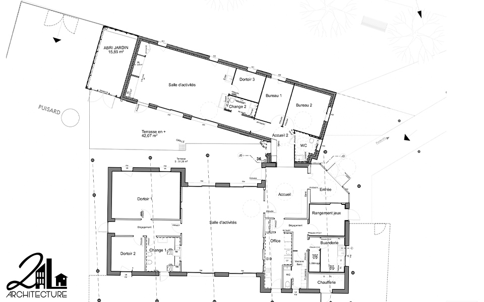
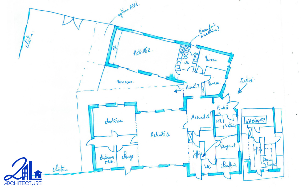
Réhabilitation de la maison de la petite enfance de Barcelonne du Gers
Ce projet avait pour but d’améliorer la structure déjà existante et de l’agrandir, afin de répondre au mieux à l’ensemble des besoins d’accueil de la maison de la petite enfance. Ainsi, une annexe a été créée, comprenant une salle d’activité, un bureau, un espace de rangement et un sanitaire PMR.
Dans la continuité, un abri extérieur est implanté, permettant de ranger les jeux d’extérieur. L’espace est également clôturé, offrant une nouvelle aire de jeux aux enfants. Dans l’existant, des espaces sont également réaménagés : change, office, buanderie et vestiaire.
Surface initiale : 224 m² dans l’existant dont 45 m² réhabilités et une extension de 90 m².
L’amélioration de l’accessibilité s’est faite au travers de :
– l’aménagement d’une place PMR ;
– la mise en œuvre d’une bande gravillonnée ;
– et la création d’un WC PMR.
– façade en briques, enduit monocouche ;
– toiture de l’extension en bac isolé monopente ;
– abri de jardin en ossature métallique et tôles ;
– menuiseries aluminium ton gris clair ;
– mobilier sur mesure.
Conception / création de mobilier adapté
Le projet en chiffres
Montant des travaux : 267 500 €TTC
Durée : 7 mois (3 phases de travaux)
Nature : réhabilitation et extension de la structure existante, en site occupé
Surfaces utiles : 90 m² et 16 m² d’abri de jardin
Surface du terrain : 998 m²
Les partenaires
Maître d’ouvrage
Equipe des cotraitants
MARCHÉ PUBLIC – COLLECTIVITÉ – ÉQUIPE DE MAÎTRISE D’ŒUVRE*
SPÉCIFICITÉ : ABF, travaux en site occupé, mobilier adapté, phasage
*Avec des cotraitants : des BET et un économiste

– La petite enfance – Enfance et jeunesse au quotidien. Guide pratique 2019 Communauté de Communes d’Aire sur l’Adour
– Petite enfance : une offre de territoire qui se développe – Grand angle. Ma Communauté de Communes – Janvier 2019#2
Avis client
Maîtrise d’oeuvre très bien investie dans la conception du projet et le bon déroulement du chantier.
Projets et réalisations




PCL Ingénierie – BET Électricité